Eline ANTUNES Architecte d'intérieur

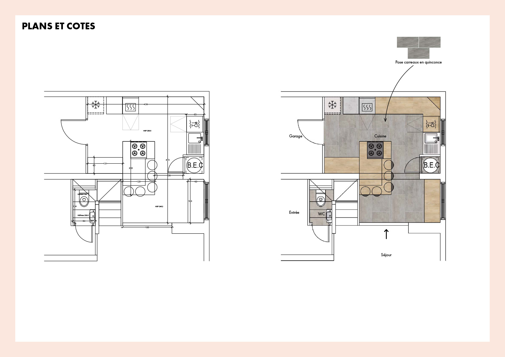
Transformation d'un garage en cuisine

Concrétisé en septembre 2024, ce projet chez des particuliers visait à transformer un garage en une cuisine familiale à la fois fonctionnelle et chaleureuse. Les clients souhaitaient un îlot central avec plaque de cuisson, un espace café et la conservation de leur électroménager existant. Le tout devait être pensé dans le respect d’un budget maîtrisé. L’aménagement a été optimisé pour offrir confort et esthétisme tout en limitant les coûts superflus.