Eline ANTUNES Architecte d'intérieur

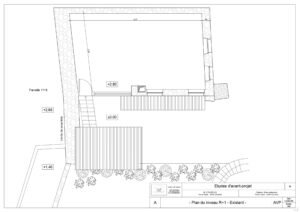
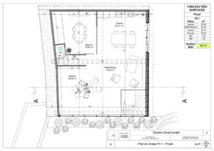
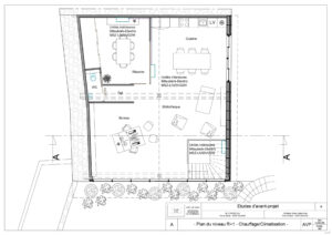
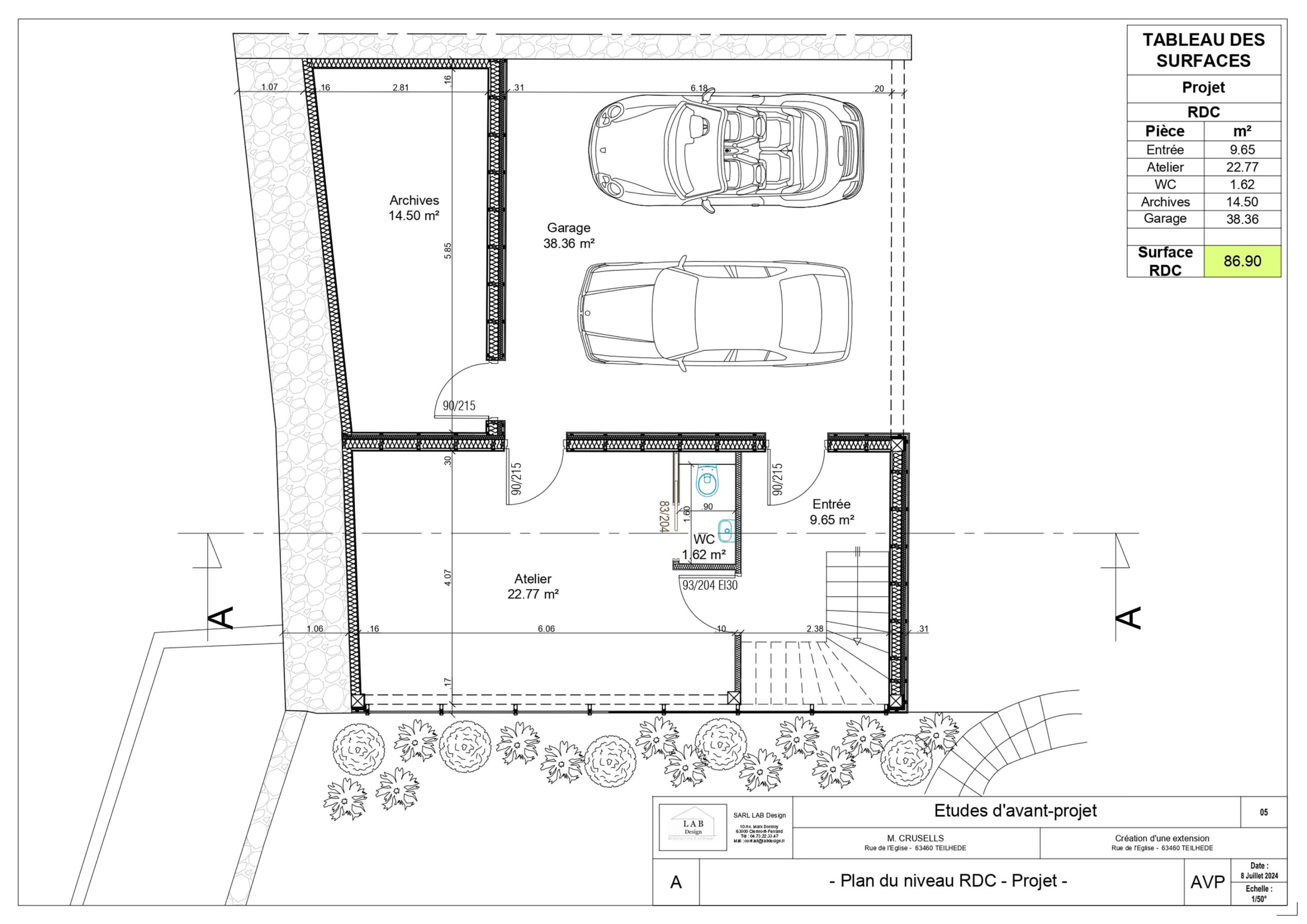
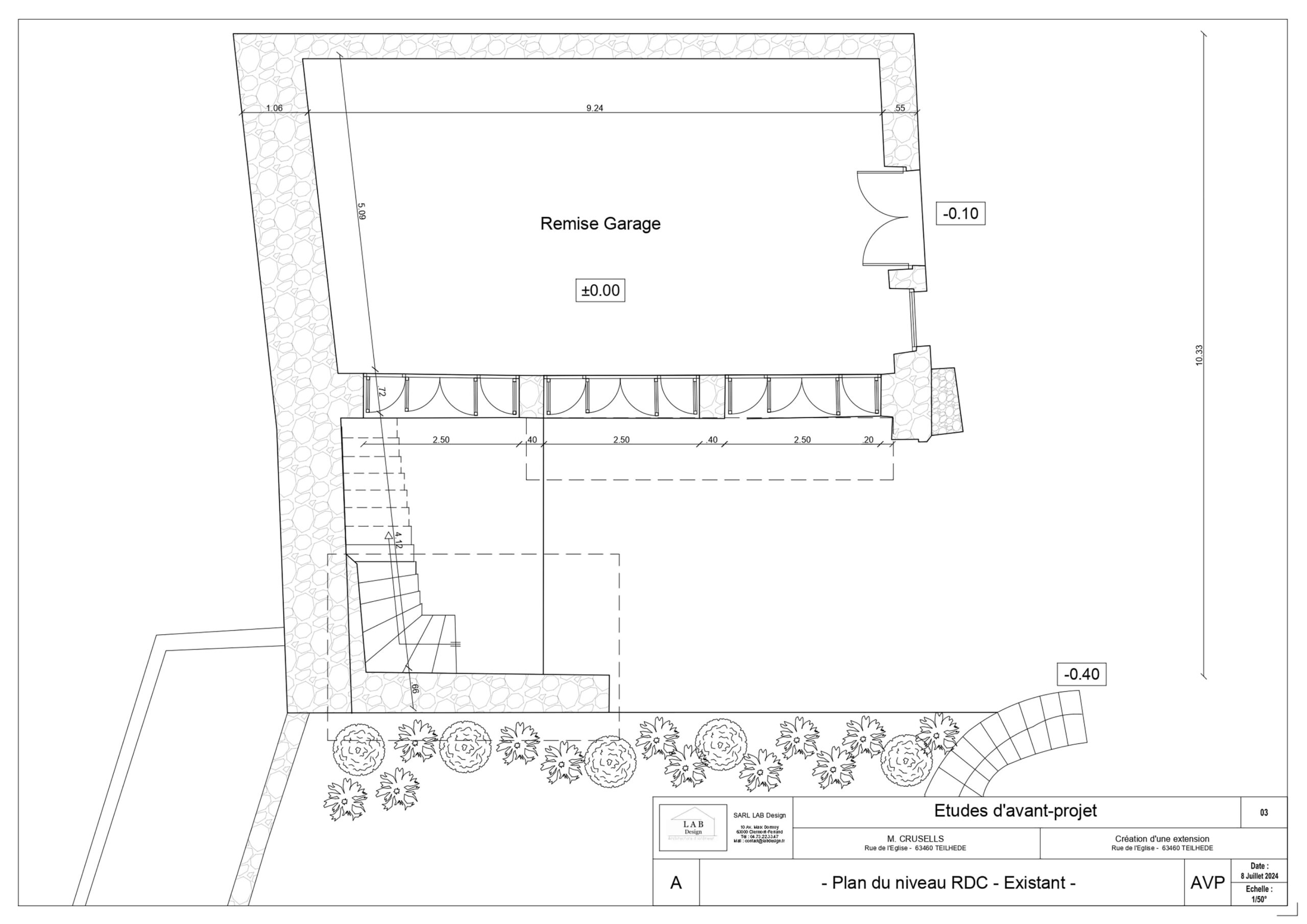
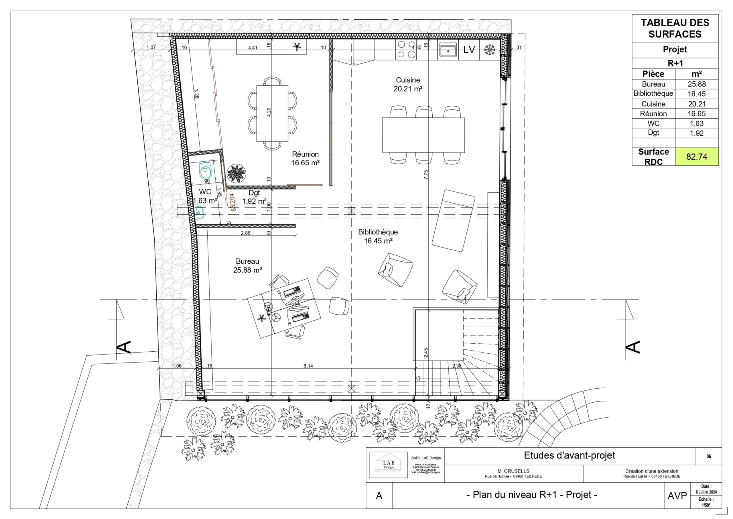
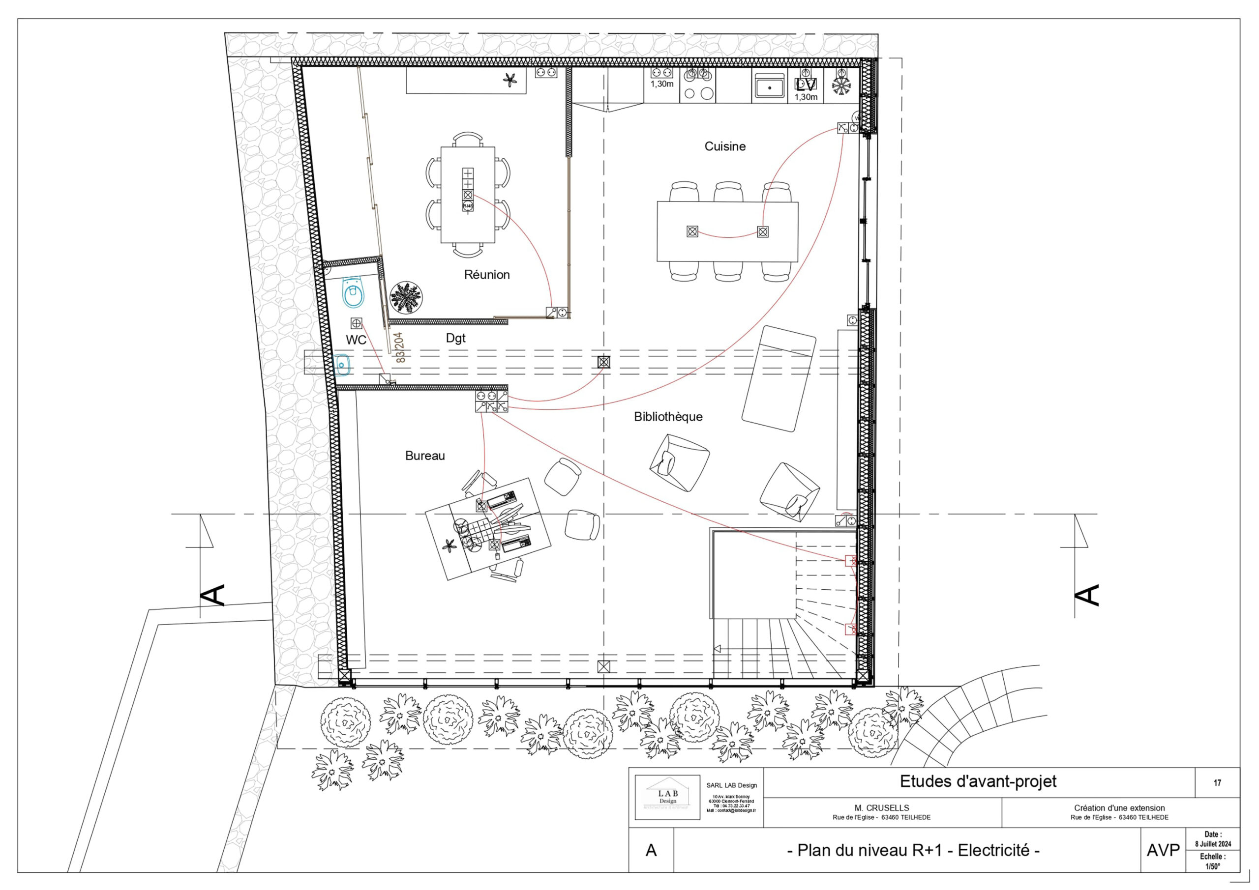
Transformation d’un atelier en bureaux à usage tertiaire

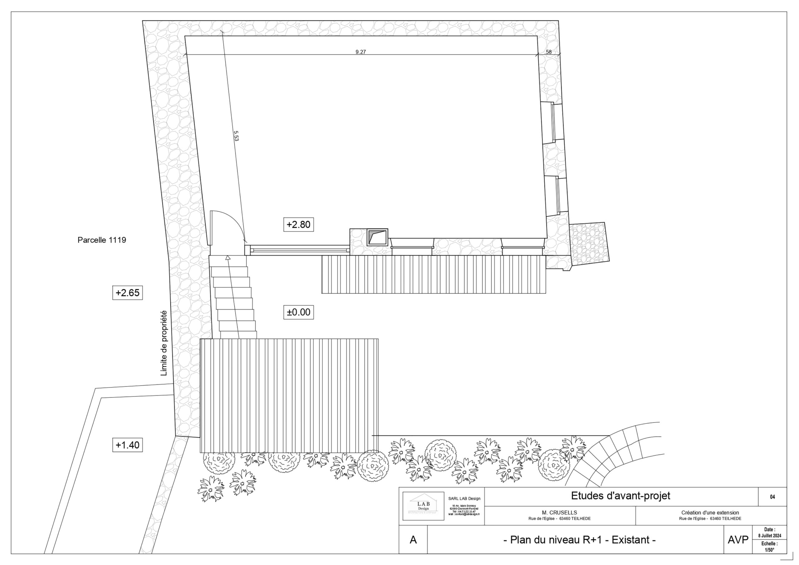
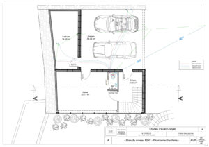
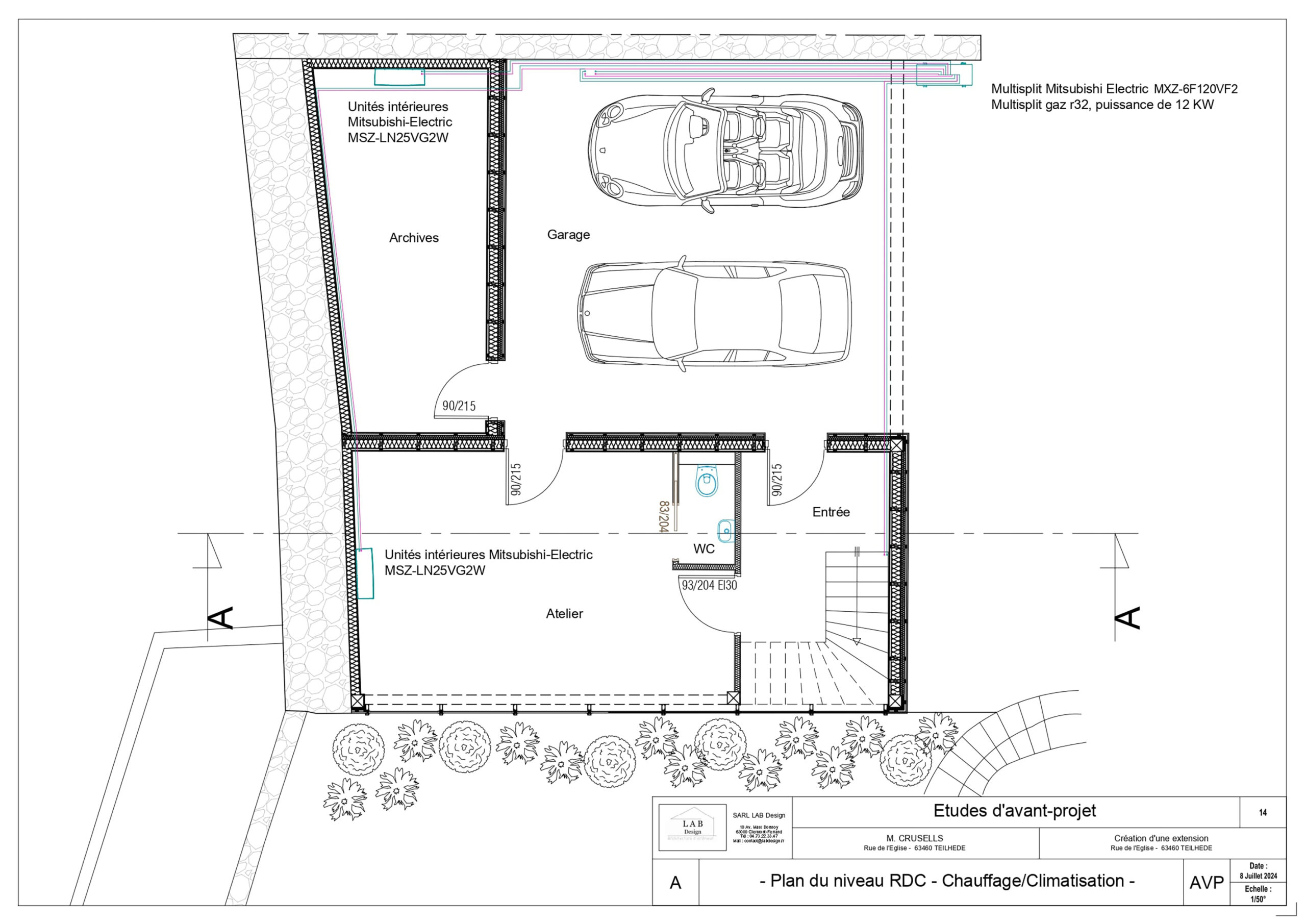
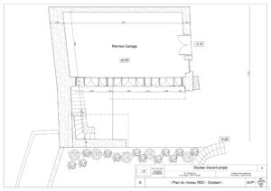
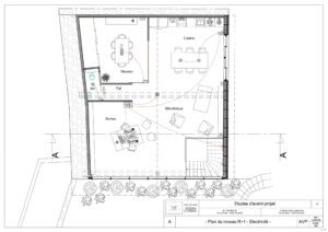
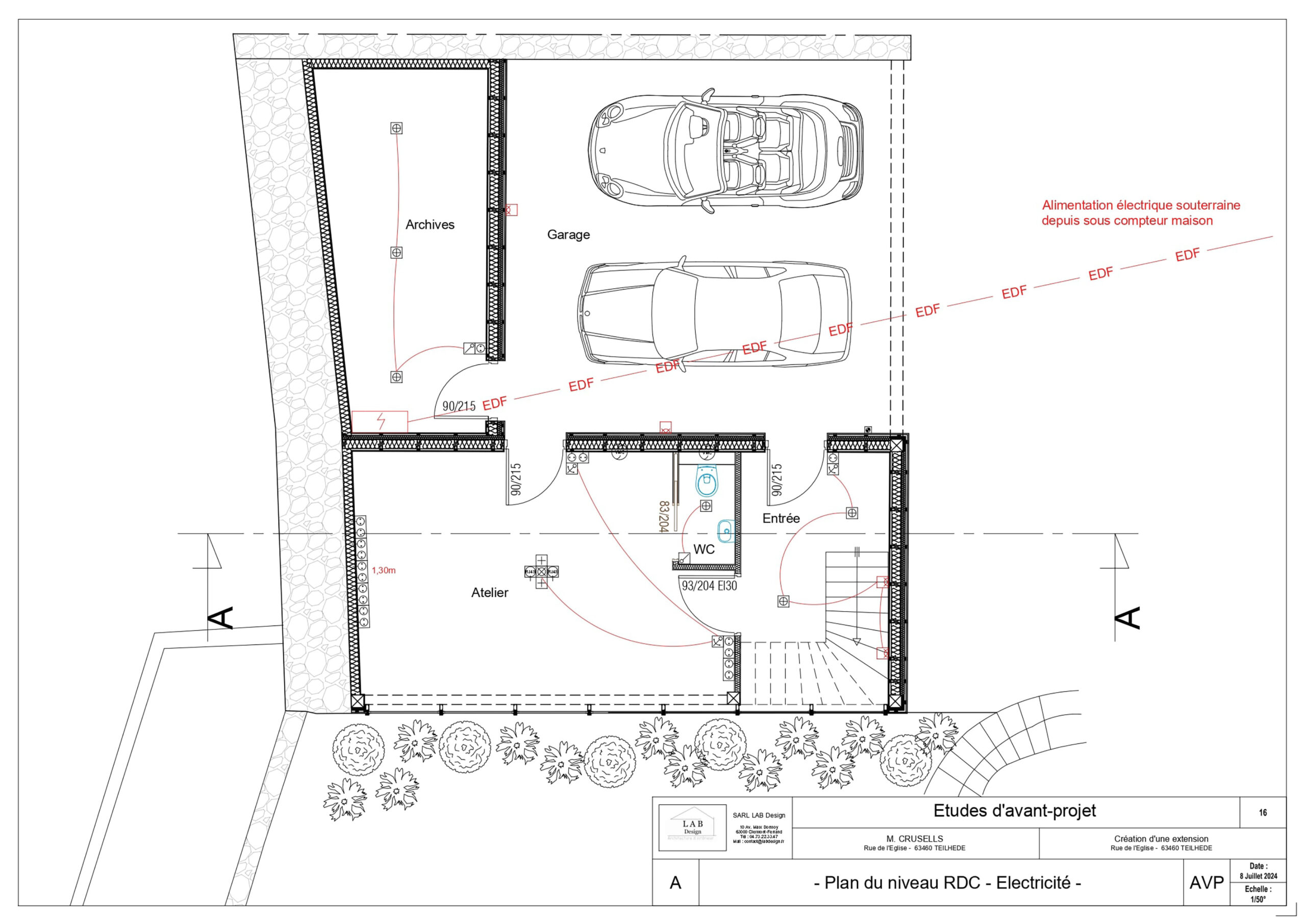
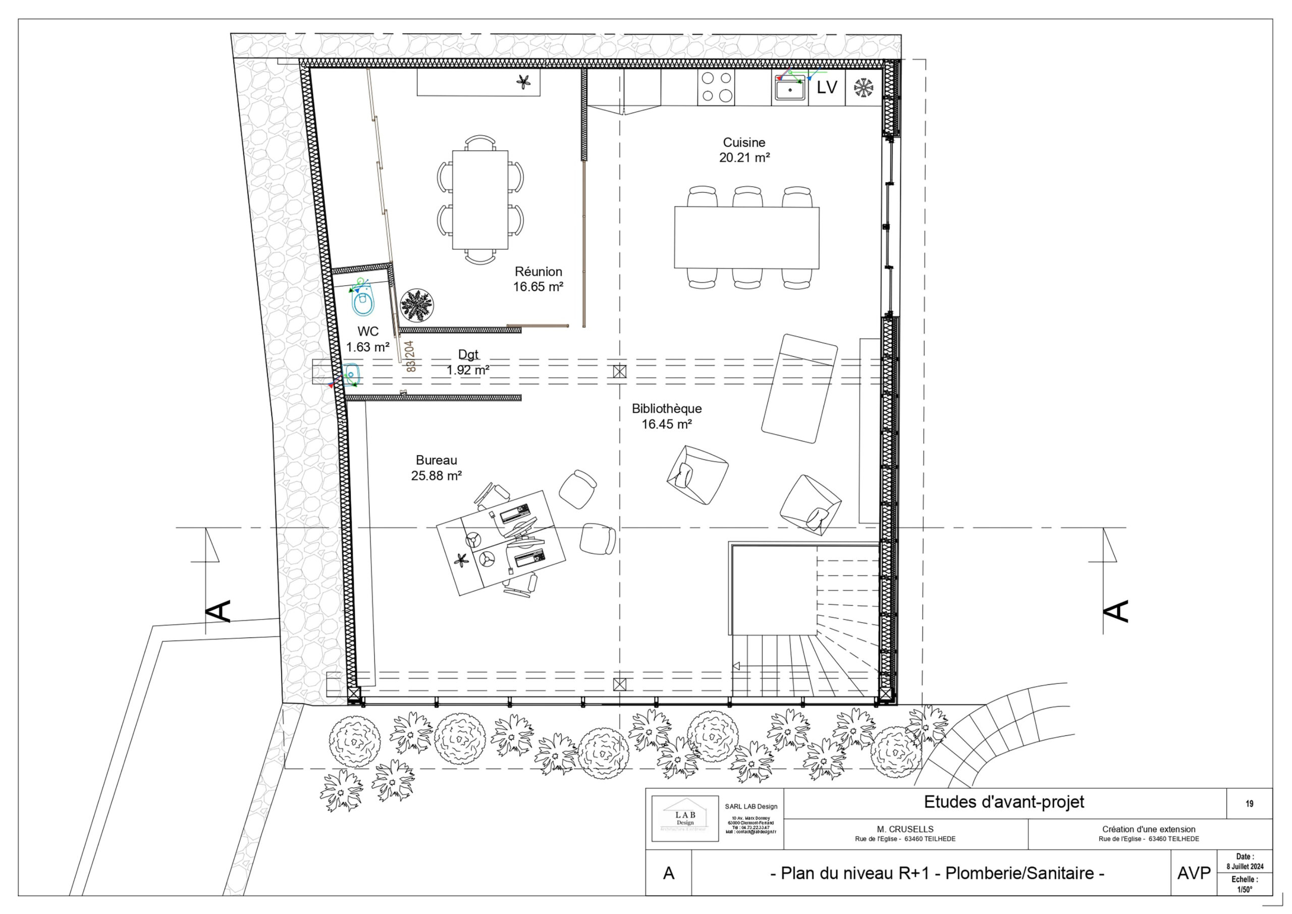
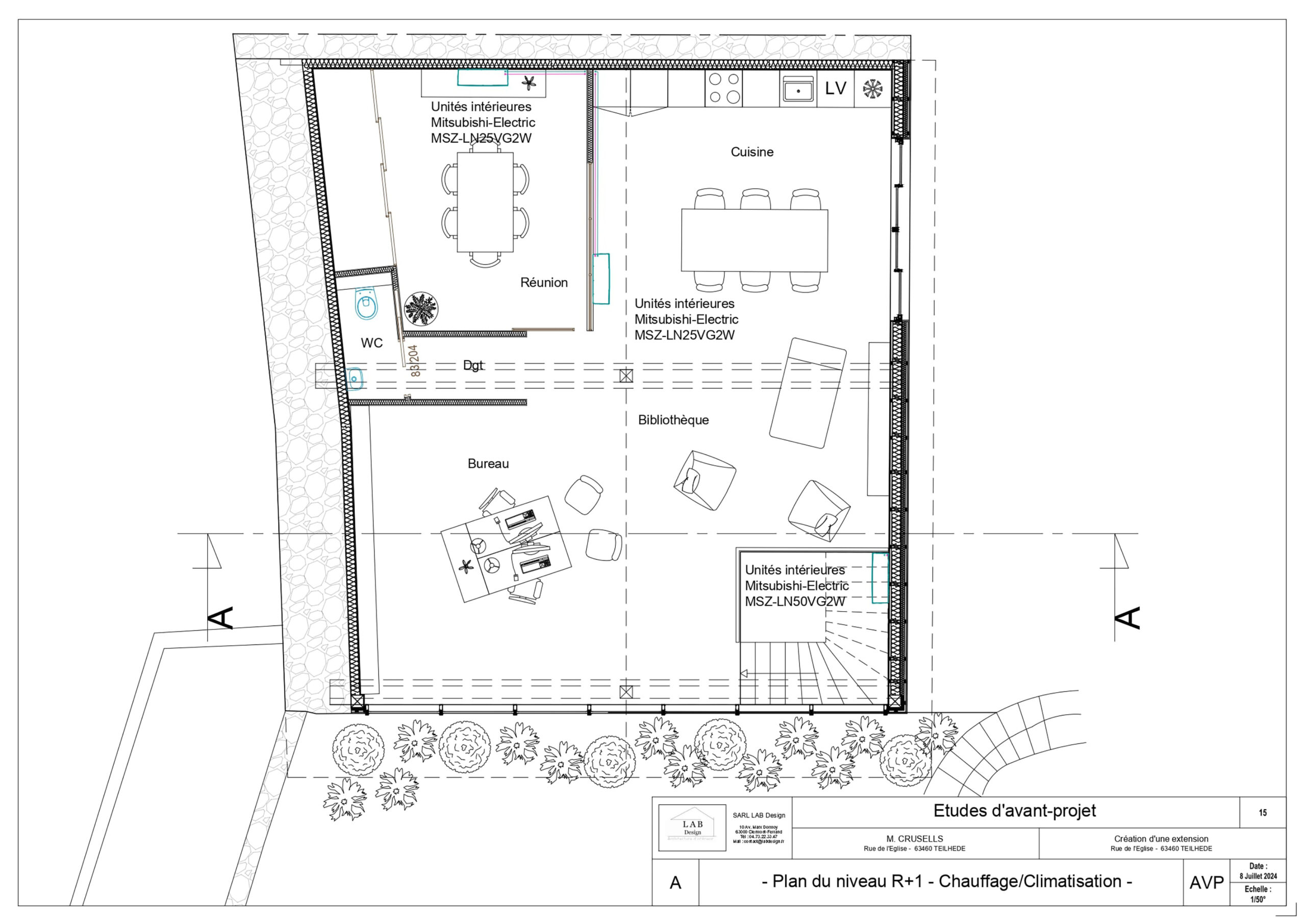
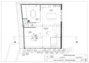
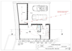
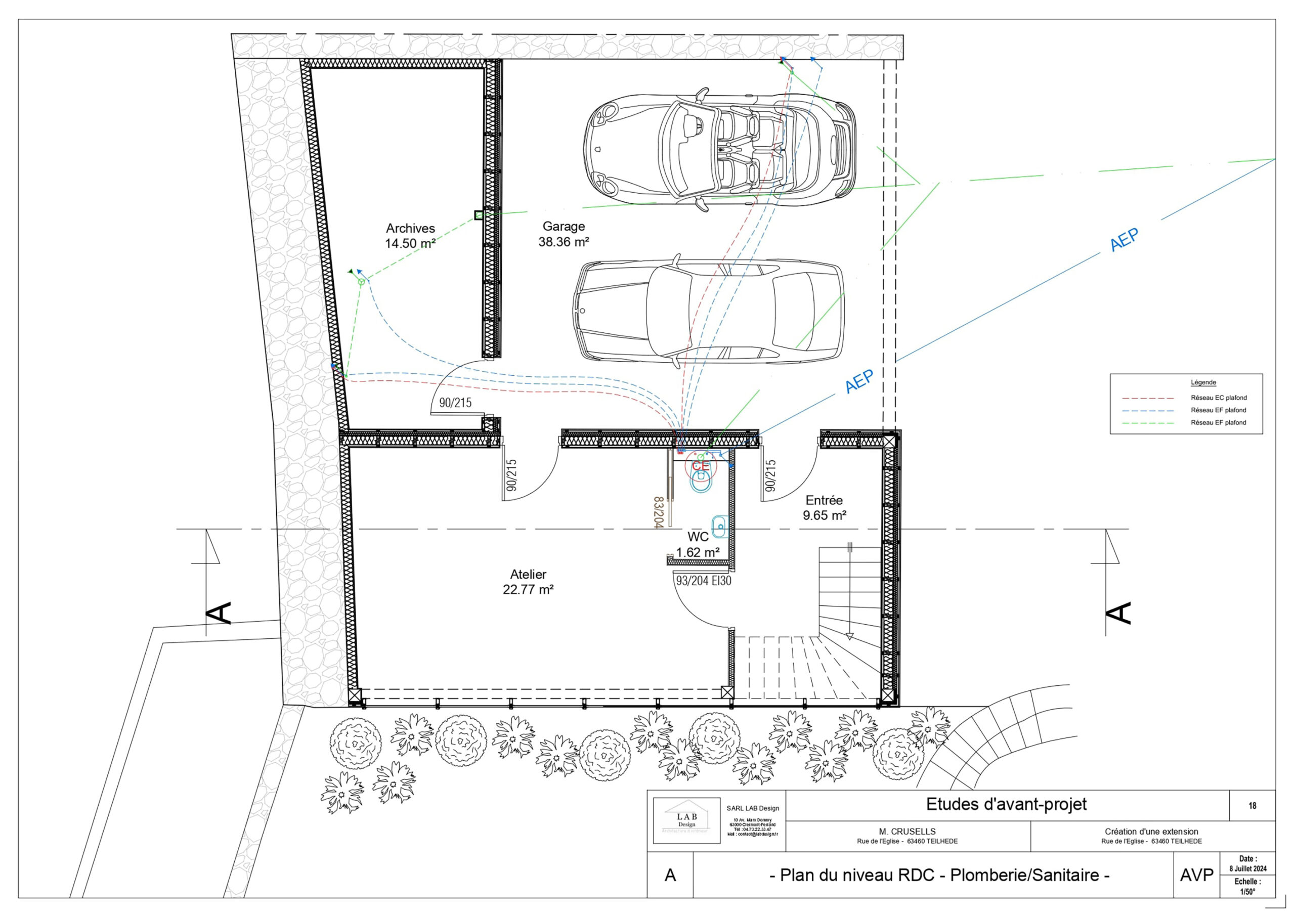
Par équipe de trois, nous avons reconverti un atelier en espace de bureaux sur deux niveaux. Nous avons assuré l’ensemble du processus, de l’état des lieux, à l’APS, APD, plans techniques, mobilier et décoration intérieure, jusqu’au permis de construire et aux visuels finaux. Le programme comprend bureaux, atelier, salle de réunion, archives, cuisine et sanitaires. Le parti-pris architectural fort a été l’intégration d’un mur-rideau en façade, apportant lumière naturelle et qualité d’usage dans un cadre de travail contemporain.